Search
- yohoho
- unblocked games 77
- unblocked games 8
- unblocked games 2
- unblocked games for school
- unblocked games world
- retro bowl
- unblocked games
- unblocked games premium retro bowl college best unblocked games unblocked games
Design process that was followed in this project:
• Introduction
• Data Collection
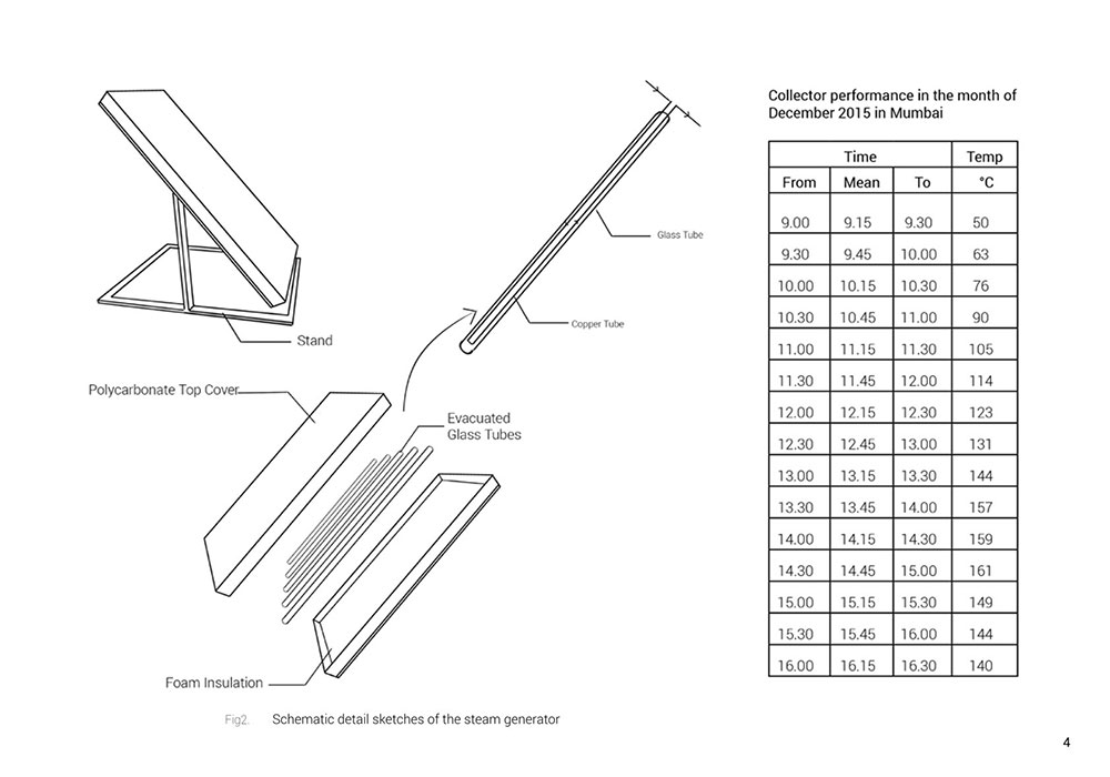
- The Technology
- Why Steam Cooking?
- Market Study
- Similar Products In The Market.
- Similar technology already installed
• User Study
- Observation
• Design Brief
• Ideations
- Cluster 1
- Cluster 2
- Cluster 3
- Cluster 4
- Cluster 5
• Final amalgamation of ideation - Concept
- Initial Concept
- Concept Refinement 1
- Concept Refinement 2
- Mock up scale models.
- 3D renderings of the final look and feel of the vessel.
- Ergonomics in the design.
- Final design.
• Reference
Case Study Download:
• Steam-based Rice Cooking Vessel......
• Steam-based Rice Cooking Vessel- Report......